CC-Files APP
The CC-Files app is an additional option that allows you to view and manage files on either an iOS or Android device.
The use of the app is not included in all projects and is only available upon customer request and at additional charge. Once the app is activated in the project it is available to all project participants and can be downloaded for free from the Apple Store as well as the Google PlayStore under the search term "cc files".
Once you have downloaded the app to your device, click on the icon
to open:
Enter the Username and Password for your account and click on «Login» to enter
After login you will see a list of your available projects for which the app is active. After selecting
a project, there are two ways for downloading data from the Thinkproject CDE to your device:
By choosing the option “Clipboard” an overview of all files in your mobile clipboard is shown. The data in this folder has to be placed into the folder "My mobile data" in the system beforehand, so that you are able to see it here.
The other way is to choose from CDE online through your CDE archive and download the required files from the different folders which are available for your account depending on the archive permissions.
Once navigated to a folder you can use the button
at the bottom of the screen to download live data from the project:
Please note that the duration of the download depends heavily on the mobile network used. We therefore recommend that you carry out this process when Wifi reception is stable.
After downloading files from the clipboard or the online CDE archive a new navigation point “Downloaded files” is created in the overview:
After clicking on this option you are able to view the different downloaded files by clicking on the filename.
In the folder "Downloaded files" mark the files and click on the icon at the bottom of the page to
remove the files from the folder in your app:
Note: This will only remove the file from the folder in the app, this will not delete the file from the system!
For a customizable view the different columns in the folder "Downloaded files" can be shown and hidden.
By clicking on
at the bottom of the page the column configuration opens:
Once you have selected the required columns, click on "< Downloaded files" at the top left to return to the previous view.
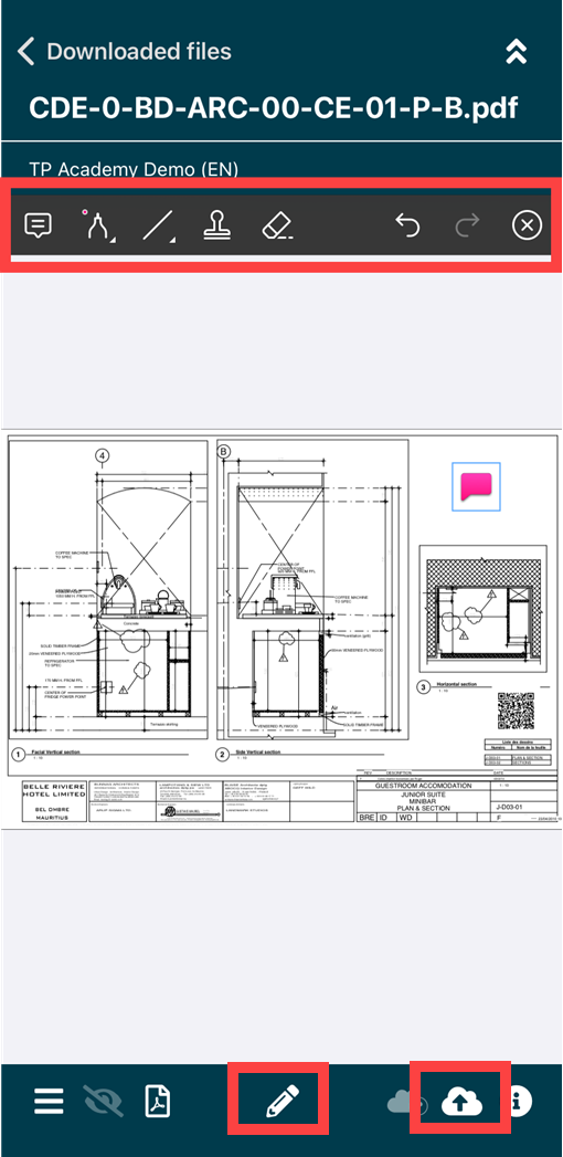
When you call up a file in your app, you have the option at the bottom of the page to make annotations in this plan with a click on the pencil symbol
and then play those annotations back into the system by clicking on the cloud icon
.
Use the options provided at the top to mark and comment files. Detailed instructions on how to add comments to files can be found here.
Within the app, you can always click on the question mark
in the lower left corner to get an overview of all functions contained within the app. Each symbol used is explained in detail at this point.